Skip to main content
  • College/University University of Lucerne located in Lucerne, Switzerland
  • College/University University of Lucerne located in Lucerne, Switzerland
  • College/University University of Lucerne located in Lucerne, Switzerland
  • Enzmann & Fischer AG

University of Lucerne

Lucerne - Switzerland

Starting with the Lucerne Central Station, which was built in 1985 by the architectural bureau Ammann und Baumann and its employee at that time Santiago Calatrava, the city of Lucerne began a radical modernisation of the quarter stretching eastwards from the station to Lake Lucerne. The Culture and Congress Centre designed by Jean Nouvel, with its wide overhanging roof, has stood at the lakeside since 2000, and directly next to it, the University’s new main building has recently been completed.

Instead of a new building, it is a renovation of the former post office, around which an unusual three-dimensional façade has been placed. The white shell appears to have been intricately folded from the second floor upwards around the five-storey building, which commands over 27,000 square metres of usable floor space. The plasticity of the rear-ventilated façades is further developed by panoramic windows which project 95 centimetres outwards from the façade, twisting in alternate directions. According to the architects the design of the façade has historical references, such as the solar panels for satellites which Koryo Miura developed in the 1960s, inspired by the Japanese art of origami, or the art of Andreas Christen, who cast large white reliefs out of polyester in the same time period. Similar angles can also be seen in the façades of Marcel Breuer’s buildings Flaine, a French ski resort. The composition of the university building’s façades also have similarities with Holabird and Roche’s Tacoma Building (1887-1889) with its angled bay windows.

College/University University of Lucerne located in Lucerne, Switzerland

A striking complete makeover of a former post office building

During the competition phase, the architects Enzmann & Fischer had planned a façade consisting of concrete curtain elements, which turned out to be too heavy for the existing frame, and too expensive. Now thin carrier plates made of multi-polished, triple-polyurethane-coated, recycled glass in an aluminium frame are suspended from the totally restructured former post office building. The foundation for this was the StoVerotec system, which the architects came across in their search for a lighter alternative to concrete. Working closely with Sto AG and GKP Fassadentechnik, Enzmann & Fischer were able to develop the artistically conceived shell for the university building including flush-set window solutions based on Reynaers CS 86-HI window and door system. This high insulated three-chamber system, proved to be perfectly suited to the complex construction system. A fixed-glazed segment has been combined with two movable windows, together measuring up to 4 x 2.30 metres and weighing up to 600 kilogram, all with triple glazing reaching an insulation value of ≤1.0 w/m2K. Standard supports are of course insufficient for this weight, so it was necessary to design a bespoke solution. In order to achieve the appearance of window surfaces made entirely of glass, silicone glazing was used on all window frames – requiring the development of another bespoke profile which is SSG anodised in the sealed areas. Without the use of high performance building components in the façade construction, such as high insulating aluminium profiles in combination with an eco-friendly energy management (heat pump and biomass energy supply) the building would not have met Minergie standards, the Swiss standard for energy efficient building.

Ensuring that this façade construction was accurate down to the last millimetre required close collaboration from all parties, from the first idea to the installation of the final handle. The regular meetings held during the tender process increased in frequency once the executing company was chosen. In particular, the coordination of the dimensions of the façade construction and the windows required intense effort on the part of everyone involved. But it takes this level of commitment to transform a well-conceived design idea into a perfectly built reality in such a prominent location as this one in Lucerne. The precision with which the custom surfaces, sharp corners and perfectly installed windows were constructed is nothing short of impressive. Together for Better.

College/University University of Lucerne located in Lucerne, Switzerland

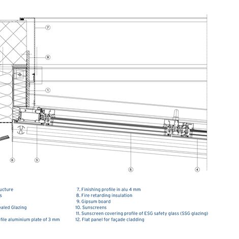
Sections window element

Project solution:

System: bespoke solution based on CS 86-HI

Project Description

  • Bespoke solution based on CS 86-HI window and door system
  • Highly insulated system (Uf up to 1.4 W/m²K) to reach the buildings Minergie label (Uw ≤ 1.0 W/m²K)
  • 6500 m² building façade of which 2200 m² windows
  • Window elements were prefabricated at the workshop including glazing
  • Window elements were mounted without visible fixation
  • 3dimensional look by using inclined window setting
  • The distance between the wall and the most protruding façade parts is 950 millimeters

Window elements:

  • 200 elements with combination of fixed & opening parts
  • Glass weight up to 600 kg
  • Max. 4000 x 2300 mm
  • Possibility to easily replace glass
  • WKII burglary proof

Opening parts

  • 340 vents
  • Weight up to 130 kg
  • Inside opening turn
  • Partial vents for SE (Smoke & Heat Evacuation) motorized

Glazing

  • Triple glazing
  • SSG: profiles were anodized to guarantee quality of adhesion

 

College/University University of Lucerne located in Lucerne, Switzerland

A-A’: vertical section opening and fixed elements

College/University University of Lucerne located in Lucerne, Switzerland

B-B’: horizontal section opening element

  • College/University University of Lucerne located in Lucerne, Switzerland
  • College/University University of Lucerne located in Lucerne, Switzerland

Involved stakeholders

Architect

  • Enzmann & Fischer AG

Fabricator

  • Surber Metallbau AG

Photographer

  • Bruno Rubatscher
  • Dany Schulthess

Other stakeholder

  • Financial department of canton Lucerne (Rafaela Fu (Investors)
  • Ursula Baus (Authors)